フロアマップ
360度パノラマビューで
会議室をご覧いただけます。

360度パノラマビューで
会議室をご覧いただけます。

| 会議室名 | 面積 (m2) |
天井高 (m) |
シアター (席数) |
スクール 3名掛け (席数) |
スクール 2名掛け (席数) |
口の字 3名掛け (席数) |
|---|---|---|---|---|---|---|
| ホール A+B+C | 283 | 3.5 | 300 | 216 | 144 | 90 |
| ホール A+B | 189 | 3.5 | 195 | 132 | 88 | 72 |
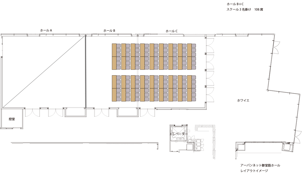
| ホール B+C | 167 | 3.5 | 180 | 108 | 72 | 60 |
| ホール A | 117 | 3.5 | 126 | 60 | 40 | 48 |
| ホール B | 72 | 3.5 | 77 | 45 | 30 | 36 |
| ホール C | 94 | 3.5 | 105 | 45 | 30 | 42 |
| ホワイエ | 158 | 3.5 | - | - | - | - |
| 控室 | 8 | 2.7 | - | - | - | - |
(図面クリックで拡大表示)